CASES

PROJETO DE ABASTECIMENTO DE ÁGUA – ampliação de estações de bombeamento

Produtos entregues:

Volume 1 – Especificações Técnicas dos Conjuntos Motobomba da EB-1, EB-2 e EB-3;

Volume 2 – Memorial, Desenhos, Especificações Técnicas e Orçamentos dos materiais.

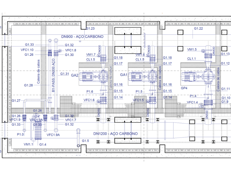
Foi prevista a substituição dos atuais conjuntos motobomba das EB-1, EB-2 e EB-3 por novos conjuntos do mesmo tipo (centrífuga de eixo horizontal, bi-partida) com capacidade nominal de 950 L/s e 141 mca (EB-1 e EB-2) e de 850 L/s e 162 mca (EB-3), com motores de 900 HP.

ESTUDO DE ABASTECIMENTO DE ÁGUA – relatório e avaliação técnica do sistema da fábrica da FIAT

A avaliação técnica incluiu os estudos hidráulicos para a remodelação dos conjuntos motobomba atuais, de forma a garantir uma capacidade de bombeamento máxima de 72 L/s (correspondente ao bombeamento da vazão máxima contratada pela FIAT, 60 L/s, em 20h/dia – de forma a evitar o bombeamento em hora de ponta) com um único conjunto motobomba, prevendo-se a instalação de mais dois conjuntos iguais como reserva.

ESTUDO DE ABASTECIMENTO DE ÁGUA – estudo para companhia pernambucana de saneamento

Sistema Trecho 1: EE1 (Orocó) ao SP1, com 2 km, seguido de trecho por gravidade entre o SP1 e o RAP (EE2), com extensão de 49,3 km, tubulação DN700 mm (aço). Para a proteção contra transientes foi projetada a instalação de uma válvula de alívio rápido de pressão, DN250 mm, na EE1, em complemento ao RH existente (V=8,84 m3).

Sistema Trecho 2: EE2 ao Stand-Pipe 2, escoamento por recalque (adutora de aço DN700 mm com 30,1 km).

PROJETO DE ABASTECIMENTO DE ÁGUA – para o bairro de Passarinho, recife

Foi elaborado o projeto para concurso, que compreendeu as seguintes obras para abastecimento do Bairro de Passarinho (em Recife/PE), para uma população estimada de 2804 habitantes (em 2030):

Captação no Poço 03 – Guabiraba (bombas submersíveis de poço, Q=10,52 L/s, Hm=152m);

Adutora de recalque DN150/160mm (150m em FFD DN150 e 1,25 km em PEAD DN160);

Câmara de interligação com o reservatório elevado existente no bairro do Passarinho (150 m3);

Rede de distribuição, a partir do reservatório elevado, com tubulações em PEAD, com extensão total de 2,367 km.

PROJETO DE ABASTECIMENTO DE ÁGUA - para a ETA Lagoa do Matias

Produtos entregues: Projeto Executivo da Adutora de reforço com vazão nominal de 30 l/s para abastecimento da ETA Lagoa do Matias (capacidade de 55 L/s). Inclui as seguintes infra-estruturas:

Caixa de derivação da adutora DN400 do Sistema Canafístula I;

Adutora com extensão total de 9,4 km de DN200mm (FoFo, K7, JGS);

Estação elevatória de água bruta – Booster (EEAB: Q=30 l/s (1+1R); Hm=94 mca; Pmotor=55 kW);

Caixa de interligação na entrada da ETA.

PROJETO DE ABASTECIMENTO DE ÁGUA – para o bairro de Passarinho, recife

População total servida de 44.873 hab. Vazão de projeto=130 L/s (permitindo a paragem em período de ponta). Inclui as seguintes infra-estruturas:

Captação flutuante no lago da barragem Retiro equipada com estação elevatória de água bruta, EEAB: Q=130 l/s (1+1R); Hm=159 mca; Pmotor=300 kW;

Adutora de água bruta – trecho de recalque (AAB-1), L=16,2 km, DN400mm (FoFo, K7, JGS);

Reservatório de Regularização apoiado (RAP),
Hútil=4 m e Vútil=1.500 m3;

Adutora de água bruta – trecho de gravidade (AAB-2), L=2,6 km, DN350mm (FoFo, K7, JGS);

Caixa de interligação na entrada da caixa de sução da EEAB Boqueirão do Cais (existente).

Projeto de ampliação de capacidade e substituição de equipamentos da ETAR de Geraz do Lima/ Lanheses – Projeto Base

Cliente: COBA SA, para a empresa pública – Águas do Norte- AdN

Local: Geraz do Lima e Lanheses – Minho/ Portugal

Início e Finalização: 11/2025 a 01/2026

Produtos entregues: Projeto Básico e BOQ. População atendida pela ETAR final de aproximadamente 7139 hab.equiv., caudal máximo de 53 L/s. O sistema de tratamento é em nível secundário com processo de lodos ativados de aeração prolongada. As ampliações foram realizadas no âmbito dos processos da fase líquida e na linha de tratamento de lamas e escorrências. Foi dimensionado novo sistema de aeração por difusores em substituição dos equipamentos existentes de aeração superficial além da troca e verificação hidráulica de todos os conjuntos de motobomba da ETE

Elaboração de Estudo de Concepção para Ampliação e Reabilitação do Sistema de Abastecimento de Água de Matala – Huíla – Fase II

População total servida: 170.004 hab (horizonte HP20 – ano de referência 2045). Vazão de Projeto HP20: 375 L/s (1.350 m³/h). Captação: 1.350 m³/h e Pot 104 kW. Adutora de água bruta: FFD DN600, L=586 m. ETA: Ciclo completo convencional e 3 módulos. RAP 1, RAP 2 e RAP 3 com aproximadamente 10.000 m³ de reservação. REL 1, REL 2, REL 3, REL 4 e REL 5 com 100 m³ cada (Vtotal = 500 m³). EEAT1-A (Q = 937 m³/h e Pot. = 615 kW), EEAT1-B (Q = 210 m³/h e Pot. = 60 kW), EEAT2 (Q = 645 m³/h e Pot. = 70 kW), EEAT3-A (Q = 103 m³/h e Pot. = 45 kW), e EEAT3-B (Q = 421 m³/h e Pot. = 46 kW).

Aeroporto do Porto Santo – NOVO TERMINAL – Otimização e Revisão de Projeto (Value Enginnering). Redes de Águas, esgotos e incêndios

Cliente: COBA/ TETRAPLANO, para ANA (Aeroportos de Portugal)

Local: Porto Santo (Madeira)/ Portugal

Início e Finalização: 09/2025 a 03/2026

Produtos entregues: Fase 1 – Relatório Técnico de avaliação das alavancas já identificadas (pelo projetista QUADRANTE e ANA) e proposta de novas alavancas); Fase 2 – Revisão do novo projeto elaborado pela QUADRANTE, com a incorporação das alavancas aprovadas ao final da fase anterior. Os estudos realizados compreenderam as redes de abastecimento de água (potável, de serviço e irrigação), redes de esgotos domésticos e rede de combate a incêndios.

Projeto de Execução da Estação Elevatória do Bloco de Rega do Concelho

Cliente: COBA SA, para a ARBCAS (Associação de Regantes e Beneficiários de Campilhas e Alto Sado)
Local: Campilhas e Alto Sado – Alentejo/ Portugal
Início e Finalização: 09/2025 a 12/2025

Produtos entregues: Projeto de Execução da Estação Elevatória do Concelho. Incluindo o projeto hidráulico e hidromecânico, o projeto de arquitetura e o projeto elétrico e de automação. Características principais da EE: Caudal nominal = 1,278 m3/s; 6 conjuntos moto-bomba (4x Qunitário= 0,2556 m3/s; 2x Qunitário= 0,1278 m3/s); Altura manométrica = 56,0 m; Potência instalada = 1 264 kW; Reservatórios pneumáticos (RH) = 2×60 m3. O projeto incluiu a modelação em regime transitório do abastecimento (através de bombeamento direto) da rede de rega a jusante da EE (DN1200 a DN90, ext. total de 20,9 km).

Projeto de Execução da Estação Elevatória do Bloco 5 do Aproveitamento Hidroagrícola de Odivelas

Produtos entregues: Projeto de Execução da Estação Elevatória do Bloco 5. Incluindo o projeto hidráulico e hidromecânico, o projeto de arquitetura e o projeto elétrico e de automação. Características principais da EE: Caudal nominal = 0,983 m3/s; 6 conjuntos moto-bomba (3+1R Qunitário= 0,281 m3/s; 1+1R Qunitário=0,140m3/s); Altura manométrica = 65,0 m; Potência instalada = 1 105 kW; Reservatórios pneumáticos (RH) = 2×50 m3. O projeto incluiu a modelação em regime transitório do abastecimento (através de bombeamento direto) da rede de rega a jusante da EE (DN900 a DN90, ext. total de 24,4 km).

Projeto de Execução para a Reabilitação das Infraestruturas e Espaços Exteriores do Bairro da Encarnação

 Cliente: COBA SA, para a Câmara Municipal de Lisboa
Local: Bairro da Encarnação – Lisboa/ Portugal
Início e Finalização: 09/2025 a 12/2025 (Zona 1)

Produtos entregues: Projeto de Execução das Redes de Saneamento (águas residuais e águas pluviais – sistema separativo) e das Alterações das Redes de Distribuição de Água, Rede de Incêndio, Rede de Lavagem e de Rega. População atendida de aproximadamente 4000 habitantes (Bairro da Encarnação, em Lisboa). Entrega do Projeto de Execução da Zona 1 (21 ruas com extensão de 4,8 km, cerca de 30% da área total do bairro).

Linha de Alta Velocidade: Lote A – Troço Oiã – Porto (Campanhã) – Projeto de Reposição de Serviços Afetados de Abastecimento de Água e Águas Residuais

Cliente: COBA SA, para a concessionária AVAN Norte/ LusoLAV
Local: Região do Porto/ Portugal
Início e Finalização: 08/2025 a 03/2026

 

Produtos entregues: Estudos Preliminares e Projeto de Execução das obras de reposição das redes de abastecimento de água e águas residuais interferidas no Troço Oiã – Porto (entre o km 0+000 e km 15+500). Abastecimento de água: estudo de 15 potenciais interferências e projeto de execução de 11 obras de reposição. Águas residuais: estudo de 12 potenciais interferências e projeto de execução de 9 obras de reposição.

Reformulação do destino final das águas residuais da Freguesia de Santana – Projeto de Execução

Cliente: COBA SA, para a empresa pública Águas e Resíduos da Madeira – ARM
Local: Freguesia de Santana – Madeira/ Portugal
Início e Finalização: 08/2025 a 01/2026

 

Produtos entregues: Projeto de Execução e Documentos para Concurso. População atendida pela ETAR final de aproximadamente 3500 hab.equiv. (tratamento terciário), a construir em duas etapas. O sistema de coleta e transporte é constituído por 11km de coletores (PVC DN200 e DN315) e três estações elevatórias (EEAR) do tipo poço seco e 1 km de condutas elevatórias.

Projecto de Execução (Revisão) das Empreitadas de Reforço da Interligação Barlavento/ Sotavento

Cliente: COBA SA, para AdA (Águas do Algarve)
Local: Algarve/ Portugal
Início e Finalização: 07/2025 a 11/2025

 

Produtos entregues: Projeto de Execução (Revisão da Projeto Hidromecânico) das obras de reforço do Sotavento: estação elevatória do Cascalho (Q=1,5 m3/s e Hm=31,5m) e Torre do Cascalho (V=413 m3) e Torre do Vale de Lobo (V=380 m3). Revisão do projeto hidráulico em função da alteração da localização das unidades em fase de obra.

Linha de Alta Velocidade: Lote A – Troço Oiã – Porto (Campanhã) – Projeto de Reposição de Serviços Afetados de Abastecimento de Água e Águas Residuais

Cliente: COBA SA, para a concessionária AVAN Norte/ LusoLAV
Local: Região do Porto/ Portugal
Início e Finalização: 08/2025 a 03/2026

Produtos entregues: Estudos Preliminares e Projeto de Execução das obras de reposição das redes de abastecimento de água e águas residuais interferidas no Troço Oiã – Porto (entre o km 0+000 e km 15+500). Abastecimento de água: estudo de 15 potenciais interferências e projeto de execução de 11 obras de reposição. Águas residuais: estudo de 12 potenciais interferências e projeto de execução de 9 obras de reposição.